Bộ Lavabo TOTO LW1505V/TL516GV – Giải Pháp Hoàn Hảo Cho Phòng Tắm Hiện Đại
Bộ sản phẩm lavabo TOTO LW1505V kết hợp cùng vòi TL516GV là lựa chọn tối ưu cho không gian phòng tắm hiện đại. Với thiết kế đặt bàn sang trọng, chất liệu sứ cao cấp cùng công nghệ men chống bám bẩn tiên tiến, bộ đôi này mang đến sự tiện nghi, bền bỉ và đẳng cấp cho ngôi nhà.
1. Thiết kế tinh tế – Tạo điểm nhấn sang trọng
Lavabo LW1505V có kiểu dáng đặt bàn hình chữ nhật bo tròn góc, mang lại sự mềm mại và hiện đại cho không gian. Kết hợp cùng vòi TL516GV dáng cong thanh lịch, bộ sản phẩm tạo nên điểm nhấn sang trọng, nâng tầm thẩm mỹ cho phòng tắm.
2. Chất liệu cao cấp – Độ bền vượt trội
Chậu rửa được làm từ sứ vệ sinh Vitreous China bền chắc, sáng bóng lâu dài. Vòi TL516GV được chế tác từ đồng thau mạ crom-niken sáng bóng, chống rỉ sét, duy trì độ bền đẹp trong nhiều năm.
3. Công nghệ men CeFiONtect – Ngăn bám bẩn hiệu quả
Lavabo LW1505V được phủ lớp men CeFiONtect độc quyền của TOTO, giúp bề mặt siêu nhẵn, ngăn ngừa vi khuẩn, chất bẩn bám dính. Người dùng dễ dàng vệ sinh và giữ cho chậu luôn sạch đẹp, sáng mới.
4. Tính năng tiện lợi – An toàn khi sử dụng
Bộ sản phẩm trang bị lỗ thoát tràn an toàn, giúp hạn chế nước tràn ra ngoài. Vòi TL516GV sử dụng công nghệ nước tiết kiệm Eco và có dòng chảy êm, mang đến trải nghiệm thoải mái mà vẫn tiết kiệm nước.
5. Thông số kỹ thuật
-
Mã sản phẩm: TOTO LW1505V/TL516GV
-
Loại chậu: Lavabo đặt bàn (Counter-top)
-
Kích thước chậu: 600 × 400 × 150 mm (Dài × Rộng × Cao)
-
Chất liệu lavabo: Sứ vệ sinh cao cấp (Vitreous China)
-
Công nghệ: Men CeFiONtect chống bám bẩn
-
Loại vòi: TL516GV – Vòi nóng lạnh 1 lỗ
-
Chất liệu vòi: Đồng thau mạ Crom-Niken sáng bóng
-
Tính năng: Lỗ thoát tràn, công nghệ tiết kiệm nước Eco
-
Màu sắc: Trắng (lavabo) – Bạc ánh kim (vòi)
-
Thương hiệu: TOTO – Nhật Bản
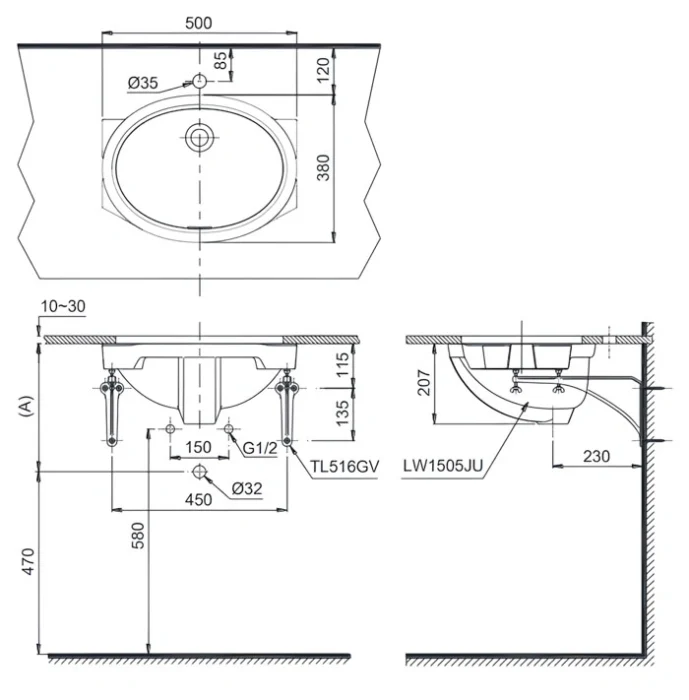
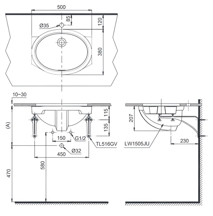
6. Bản vẽ kỹ thuật 2D lavabo âm bàn LW1505V/TL516GV

7. Kết luận
Bộ Lavabo LW1505V kết hợp vòi TL516GV mang đến sự tiện nghi, an toàn và sang trọng cho mọi không gian phòng tắm. Với thiết kế tinh tế, chất liệu bền đẹp và công nghệ tiên tiến, đây là lựa chọn lý tưởng cho gia đình, khách sạn và các công trình cao cấp.



