Lavabo TOTO LT4716MTG17 – Phong Cách Tối Giản Với Hoàn Thiện Mờ Sang Trọng
Trong thiết kế nội thất phòng tắm hiện đại, lavabo không chỉ là thiết bị vệ sinh thông thường mà còn góp phần tạo điểm nhấn thẩm mỹ. Lavabo TOTO LT4716MTG17 là mẫu chậu rửa đặt bàn thuộc dòng Linear Ceram, nổi bật với viền siêu mỏng tinh tế và lớp hoàn thiện mờ (matte finish), mang đến sự sang trọng và khác biệt cho không gian.
1. Thiết kế viền siêu mỏng – Tinh tế và thanh lịch
Lavabo LT4716MTG17 được thiết kế theo phong cách lavabo đặt bàn (Console Lavatory) với viền siêu mỏng chỉ 4 mm, mang đến cảm giác nhẹ nhàng, thanh thoát nhưng vẫn chắc chắn.
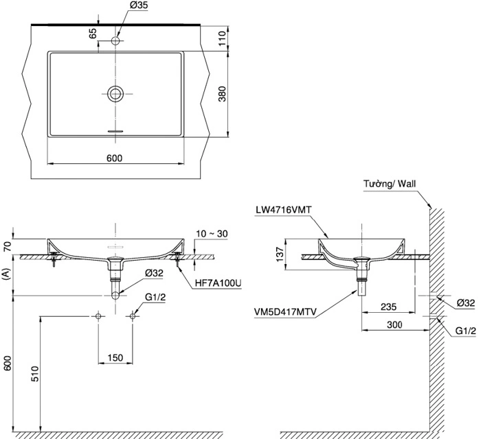
Kích thước 380 × 600 × 120 mm giúp lavabo rộng rãi hơn so với các mẫu cùng dòng, tạo sự thoải mái tối đa khi sử dụng, đồng thời vẫn giữ được vẻ đẹp tinh tế và gọn gàng.
2. Chất liệu Linear Ceram – Bền chắc và đẳng cấp
Sản phẩm được làm từ sứ vệ sinh Linear Ceram cao cấp, loại sứ nổi bật nhờ khả năng chế tác viền mỏng nhưng vẫn đảm bảo độ bền chắc.
Điểm nhấn của phiên bản MTG17 chính là lớp hoàn thiện mờ (Matte Finish). Không chỉ mang lại sự sang trọng khác biệt, bề mặt mờ còn giúp hạn chế vết trầy xước, dễ vệ sinh và duy trì vẻ đẹp ổn định theo thời gian.
3. Tiện ích sử dụng an toàn và tiện lợi
Bên cạnh thiết kế đẹp mắt, Lavabo TOTO LT4716MTG17 còn tích hợp nhiều tiện ích hữu ích:
-
Có lỗ thoát tràn, ngăn nước tràn ra ngoài khi quên khóa vòi.
-
Bộ xả pop-up đi kèm, đảm bảo sự đồng bộ, tiện lợi và tăng tính thẩm mỹ.
-
Thiết kế đặt bàn, dễ dàng kết hợp với nhiều loại bàn đá và vòi lavabo, phù hợp nhiều phong cách khác nhau.
4. Ưu điểm nổi bật
-
Thiết kế viền siêu mỏng 4 mm, tối giản và sang trọng.
-
Chất liệu Linear Ceram cao cấp, bền chắc.
-
Hoàn thiện mờ (Matte Finish) tinh tế, chống trầy xước, dễ vệ sinh.
-
Có lỗ thoát tràn và bộ xả pop-up đi kèm.
-
Kích thước rộng rãi, mang lại sự thoải mái khi sử dụng.
-
Thương hiệu TOTO Nhật Bản – bảo chứng cho chất lượng toàn cầu.
5. Thông số kỹ thuật
-
Mã sản phẩm: TOTO LT4716MTG17
-
Loại chậu: Lavabo đặt bàn (Console Lavatory)
-
Kích thước: 380 × 600 × 120 mm (Dài × Rộng × Cao)
-
Chất liệu: Sứ vệ sinh Linear Ceram
-
Viền chậu: Siêu mỏng 4 mm
-
Hoàn thiện: Bề mặt mờ (Matte Finish)
-
Tính năng: Có lỗ xả tràn, bộ xả pop-up đi kèm
-
Màu sắc: Trắng mờ, xám mờ, be mờ, đen mờ
6. Bản vẽ kỹ thuật 2D lavabo Đặt Bàn LT4716MTG17

7. Kết luận
Lavabo TOTO LT4716MTG17 là sự lựa chọn hoàn hảo cho những ai mong muốn một không gian phòng tắm hiện đại, tối giản nhưng vẫn sang trọng và tinh tế. Với thiết kế viền siêu mỏng, chất liệu cao cấp và lớp hoàn thiện mờ độc đáo, sản phẩm vừa mang đến tính thẩm mỹ cao, vừa đảm bảo độ bền bỉ và sự tiện lợi trong sử dụng.
Nếu bạn đang tìm kiếm một mẫu lavabo đặt bàn cao cấp với thiết kế rộng rãi, sang trọng và khác biệt, thì TOTO LT4716MTG17 chắc chắn sẽ đáp ứng kỳ vọng.


