Lavabo TOTO LHT300CR – Thiết Kế Treo Tường Gọn Gàng và Hiện Đại
Lavabo TOTO LHT300CR là một trong những mẫu chậu rửa treo tường hiện đại, được nhiều gia đình và công trình công cộng ưa chuộng. Với thiết kế tối giản, chất liệu sứ vệ sinh cao cấp và công nghệ men chống bám bẩn tiên tiến, sản phẩm mang lại sự tiện nghi và thẩm mỹ cho không gian phòng tắm.
1. Thiết kế treo tường – Tối ưu diện tích
Lavabo LHT300CR thuộc dòng lavabo treo tường (Wall-hung Basin), giúp tiết kiệm diện tích tối đa, phù hợp cho phòng tắm nhỏ hoặc khu vực công cộng. Kiểu dáng vuông vắn, nhỏ gọn, dễ lắp đặt và mang đến sự gọn gàng, ngăn nắp.
2. Chất liệu sứ cao cấp – Bền đẹp với thời gian
Sản phẩm được sản xuất từ sứ vệ sinh Vitreous China cao cấp, bề mặt sáng bóng, chống ố vàng và duy trì độ bền lâu dài. Đây là chất liệu quen thuộc trong các sản phẩm của TOTO, đảm bảo an toàn và thẩm mỹ cho người dùng.
3. Công nghệ men CeFiONtect – Ngăn ngừa bám bẩn
Lavabo LHT300CR được phủ lớp men CeFiONtect độc quyền của TOTO, giúp bề mặt siêu nhẵn, hạn chế cặn bẩn và vi khuẩn bám dính. Nhờ vậy, việc vệ sinh trở nên đơn giản hơn, giữ cho chậu rửa luôn sạch sẽ và sáng bóng.
4. Tính năng tiện ích – An toàn và tiện lợi
Lavabo được trang bị lỗ thoát tràn, giúp ngăn tình trạng nước tràn ra ngoài. Kích thước nhỏ gọn nhưng vẫn đáp ứng đầy đủ công năng, phù hợp sử dụng tại gia đình, khách sạn, nhà hàng hay khu vệ sinh công cộng.
5. Thông số kỹ thuật
-
Mã sản phẩm: TOTO LHT300CR
-
Loại chậu: Lavabo treo tường (Wall-hung Basin)
-
Kích thước: 400 × 360 × 175 mm (Dài × Rộng × Cao)
-
Chất liệu: Sứ vệ sinh cao cấp (Vitreous China)
-
Công nghệ: Men CeFiONtect chống bám bẩn
-
Tính năng: Lỗ thoát tràn an toàn
-
Màu sắc: Trắng trang nhã
-
Thương hiệu: TOTO – Nhật Bản
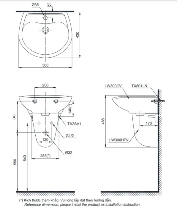
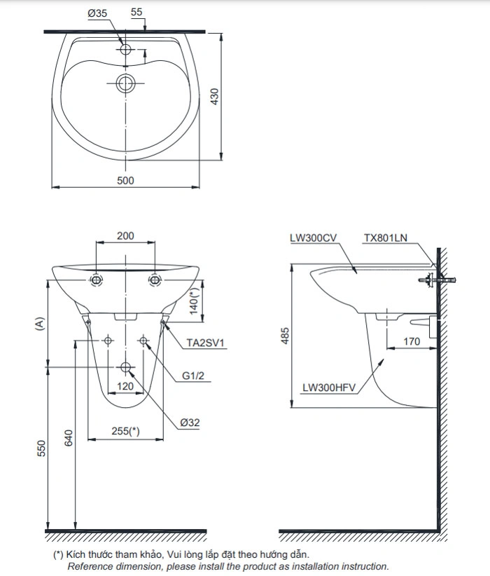
6. Bản vẽ kỹ thuật 2D lavabo treo tường LHT300CR

7. Kết luận
Lavabo TOTO LHT300CR là lựa chọn lý tưởng cho không gian phòng tắm cần sự gọn gàng và tiện ích. Với thiết kế treo tường tối giản, chất liệu bền bỉ và công nghệ chống bám bẩn hiện đại, sản phẩm không chỉ mang lại sự tiện lợi mà còn nâng cao giá trị thẩm mỹ cho công trình.



