Vòi Chậu Gắn Tường Nóng Lạnh TOTO TLS01309B – Hiện Đại, Tiện Nghi
1. Giới thiệu sản phẩm
Vòi chậu gắn tường nóng lạnh TOTO TLS01309B là sản phẩm cao cấp, được thiết kế hiện đại, tinh tế, phù hợp cho các không gian phòng tắm sang trọng. Với cơ chế gắn tường, sản phẩm giúp tiết kiệm diện tích, tạo sự gọn gàng và nâng cao tính thẩm mỹ cho không gian.
2. Thiết kế tinh tế
TLS01309B sở hữu kiểu dáng tối giản nhưng sang trọng, được lắp đặt trực tiếp lên tường, mang đến sự gọn gàng và tinh tế. Bề mặt sáng bóng giúp dễ dàng phối hợp với nhiều loại chậu rửa, từ gia đình đến công trình cao cấp.
3. Chất liệu cao cấp
Sản phẩm được làm từ đồng thau nguyên chất, đảm bảo độ bền chắc và an toàn sức khỏe. Bề mặt mạ Cr-Ni cao cấp sáng bóng, chống oxy hóa, hạn chế gỉ sét và giữ được độ bền đẹp lâu dài.
4. Ưu điểm nổi bật
-
Thiết kế gắn tường gọn gàng, tiết kiệm không gian.
-
Chức năng nóng – lạnh tiện lợi, dễ sử dụng.
-
Van đĩa sứ chất lượng cao, chống rò rỉ.
-
Chất liệu đồng thau bền chắc, an toàn.
-
Lớp mạ Cr-Ni sáng bóng, chống gỉ sét.
-
Dễ dàng vệ sinh, tiết kiệm nước, thân thiện môi trường.
5. Thông số kỹ thuật
-
Mã sản phẩm: TOTO TLS01309B
-
Loại sản phẩm: Vòi chậu nóng lạnh gắn tường
-
Chất liệu: Đồng thau nguyên chất
-
Lớp mạ: Cr-Ni sáng bóng
-
Áp lực nước: 0.05MPa ~ 0.75MPa
-
Van điều khiển: Van đĩa sứ chống rò rỉ
-
Kiểu lắp đặt: Gắn tường
-
Màu sắc: Bạc sáng (Chrome)
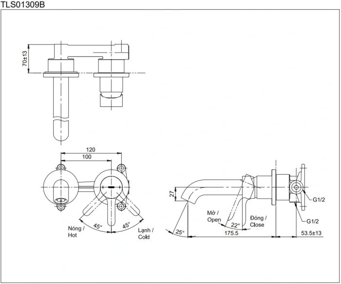
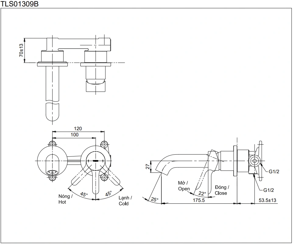
6. Bản vẽ kỹ thuật 2D vòi lavabo âm tường TLS01309B

7. Kết luận
Với thiết kế gắn tường hiện đại, chất liệu bền bỉ và tính năng tiện lợi, TOTO TLS01309B là lựa chọn lý tưởng cho không gian phòng tắm sang trọng. Sản phẩm không chỉ mang lại sự tiện nghi mà còn góp phần tạo nên phong cách sống đẳng cấp.



