TBG02201BA – Vòi xả bồn tắm cao cấp, bền đẹp và tiện nghi
1. Giới thiệu về TBG02201BA
TBG02201BA là mẫu vòi xả bồn tắm cao cấp, được thiết kế hiện đại với chất liệu bền bỉ và kiểu dáng sang trọng. Sản phẩm không chỉ giúp việc xả nước trở nên nhanh chóng, tiện lợi mà còn góp phần nâng cao tính thẩm mỹ cho không gian phòng tắm. Với chất lượng vượt trội, TBG02201BA phù hợp cho gia đình, khách sạn, resort hay spa.
2. Đặc điểm nổi bật
Điểm nổi bật của TBG02201BA là thiết kế tinh tế, phù hợp nhiều phong cách phòng tắm khác nhau. Bề mặt sản phẩm được xử lý mạ crom sáng bóng, chống oxy hóa và dễ vệ sinh.
Ngoài ra, TBG02201BA còn được tối ưu để mang lại lưu lượng nước ổn định, mạnh mẽ và êm ái, giúp làm đầy bồn nhanh chóng mà vẫn tiết kiệm thời gian và nguồn nước.
3. Ưu điểm khi sử dụng TBG02201BA
-
Xả nước nhanh, ổn định: Lưu lượng mạnh mẽ và đều đặn.
-
Độ bền cao: Chất liệu cao cấp, chống gỉ sét và ăn mòn.
-
Thẩm mỹ sang trọng: Thiết kế tinh tế, bề mặt sáng bóng.
-
Dễ vệ sinh: Chống bám bẩn, lau chùi đơn giản.
-
Ứng dụng đa dạng: Gia đình, khách sạn, resort, spa cao cấp.
4. Ứng dụng thực tế
TBG02201BA là lựa chọn lý tưởng cho nhiều không gian phòng tắm. Với hộ gia đình, sản phẩm mang lại sự tiện lợi và nâng cao trải nghiệm thư giãn. Trong các khách sạn, resort hay spa, TBG02201BA không chỉ giúp tối ưu hóa tiện ích mà còn tăng thêm sự sang trọng và đẳng cấp cho không gian.
5. Thông số kỹ thuật cơ bản
-
Loại sản phẩm: Vòi xả bồn tắm.
-
Chất liệu: Đồng thau mạ crom hoặc inox cao cấp.
-
Bề mặt: Sáng bóng, chống oxy hóa, dễ vệ sinh.
-
Kiểu lắp đặt: Gắn tường hoặc gắn trực tiếp bồn.
-
Lưu lượng nước: Xả nhanh, mạnh và ổn định.
-
Phụ kiện kèm theo: Bộ ốc siết, dây nối, gioăng cao su.
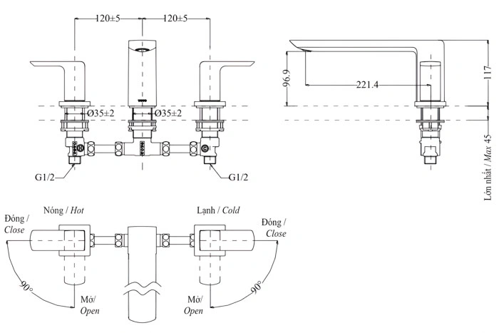
6. Bản vẽ kỹ thuật 2D vòi xả bồn tắm nóng lạnh TBG02201BA

7. Kết luận
TBG02201BA không chỉ là vòi xả bồn tắm tiện ích mà còn là chi tiết nâng cao thẩm mỹ cho phòng tắm. Với thiết kế sang trọng, chất liệu bền bỉ và tính năng xả nước mạnh mẽ, sản phẩm mang lại sự tiện nghi và trải nghiệm thư giãn tối ưu.


